Construction to Begin 'As Soon As Weather Permits'
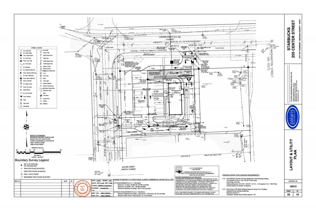
After months of debate, Chardon Planning Commission approved plans for a new Starbucks Coffee Company restaurant at the corner of Center Street and Cherry Avenue at their Jan. 19 meeting.
After months of debate, Chardon Planning Commission approved plans for a new Starbucks Coffee Company restaurant at the corner of Center Street and Cherry Avenue at their Jan. 19 meeting.
Community Development Administrator Steve Yaney said construction on the building will begin as soon as weather permits.
At the meeting, Yaney noted rotating the building 90 degrees would move the full traffic access point from Cherry Avenue to Center Street. The change, he said, came after consultation with the city’s traffic engineer.
“That would immediately get the traffic from the drive-thru out on to Center Street, instead of forcing it back to Cherry Avenue, (where) a lot of cars would be making a right and then left into a turn lane that’s already somewhat congested parts of the day,” Yaney said.
He said a change restricting the Cherry Avenue entrance to a right-in right-out only would need to be submitted as part of the construction documents.
At their Nov. 16 meeting, the commission approved variances for a reduction of parking space along the back of the property, reduction of the minimum lot size from 1 acre to 0.6 acres and one to allow traffic to circulate around the site without blocking sidewalks.
At that meeting, the planning commissioner asked Sommers Development Group to return with a plan showing the building rotated to hide the drive-thru window from travelers coming east into Chardon.
On Dec. 7, Sommers returned with an updated plan which was rejected by a split vote from the commission.
The developer returned once again Dec. 21 with a plan that received positive feedback after Sommers, city staff and Starbucks architects collaborated in shifting the original design presented earlier by 90 degrees, putting the drive-thru window facing east towards Washington Post Plaza.
Because the meeting could not be held as a hearing due to time constraints, that plan had to wait for the Jan. 19 meeting for approval and also for Chardon City Council to approve a license agreement allowing encroachment into the front yard setback, which they did Jan. 14.
Planning commission approved a new slate of variances Tuesday, as Law Director Ben Chojnacki reminded the group variances approved that evening superseded previous ones approved before the building was rotated in concept plans.
Kristyl Fuller, owner of Toe Ink Nail Salon on Cherry Avenue next to the building site, joined the meeting to discuss proposed planting along the property line after Yaney indicated the city did not want to block off light coming into a window on her building.
“Thank you for not wanting to block my window,” Fuller said. “A fence would not be great because then I would just be looking out my window to a fence. And I look forward to having more exposure to my business. People going through the drive through and going, ‘Is that a nail salon there? I never knew that was there.’”
Yaney said there will be two new trees planted, plus the existing tree nearest the corner will remain.
After approval of the variances, commission member Colin Wantz said while he had no issue with the actions, he is still not in favor of the project’s encroachment into the right-of-way.
Chair Andy Blackley noted Wantz’s concern, but said he supports it for this project. The two properties to the east, when developed, will probably want the same consideration, he said.
“Frankly, I support that and I think that this is a large right-of-way, and I don’t have a problem with moving into it. I think it’s going to make it look consistent to the development that’s at Washington Post (Plaza) and this corridor will look consistent in the future,” Blackley said.









