The Grand Rapids-based food and soft goods retailer known as Meijer Inc. has secured another site in Northeast Ohio.
The Grand Rapids-based food and soft goods retailer known as Meijer Inc. has secured another site in Northeast Ohio.
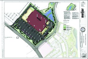
During a recent Bainbridge Township Trustees meeting, the company finalized the purchase of a 15-acre site at the former Geauga Lake Amusement Park in Bainbridge Township from Industrial Commercial Properties for $4.9 million, according to Geauga County land records.
“We are thrilled about it. It’s really exciting for the Geauga Lake district as we refer to it. Meijer has been working on this site for maybe five years,” ICP Senior Vice President of Development Jeffrey Martin said. “They’ve been committed to this. They really believe in the area and we are excited about getting a store done by the way of a transaction with us. I think they are thrilled.”
Martin said Meijer had been working on the property prior to ICP buying it from Cedar Fair.
“We don’t have any real clarity on their timeframe, but hope it’s sooner than later. I think it’s a great asset for the community,” Martin said.
On June 26, Bainbridge Township Trustees gave Meijer the final green light on development plans for building a supercenter on the property.
The proposed site is located next to Vision Development’s planned residential area, the entryway being off of the proposed Big Dipper Road and intersecting onto Aurora Road.
“The township trustees did a great job of reviewing this project. I think we spent about two years working through it with the township, so we were kind of crafting design guidelines and the zoning for the property with the township,” Martin said. “It’s been a long road, but I think at the end of the day, we got a really great project out of this and we should all be proud of our efforts moving forward.”
Nostalgia-themed components of the park’s history and heritage will be incorporated with a Geauga Lake community monument sign, landscaping plans that include grading and planting areas along state Route 43 and Big Dipper Road, and an outdoor community gathering space, according to the plan.
“It really creates a number of anchors. You got Home Depot, Walmart, Kohl’s, Target, Menards and you got Meijer, so that that’s a good collective of large regional retail opportunities for folks,” Bainbridge Trustee Jeff Markley said.
Meijer also plans to display a big mural wall with images of Geauga Lake inside the building with one outside wall having a roller coaster motif design with the company name on it, Markley said in a previous meeting, adding that construction could possibly begin in 2024.
“It provides the completion of our retail Mecca over there. Beyond that, the other thing that it does is it demonstrates that we will be able to produce some revenue that doesn’t produce a whole lot of service requirements,” Markley said. “It’ll be better when it gets built. That’s our hope — that they are able to do something come next spring and start construction in 2024, but we just don’t know. With today’s marketplace, materials, financing and all of that, these businesses aren’t rushing out to break ground on projects that cost them lots of money.”
Meijer Senior Real Estate Manager Cris Jones did not respond to a request for comment prior to press deadline.








