It's pretty startling how many people really care. They moved away and they still care. Carol KovacThere are many ways to dress a building. Randy Sharpe
If anyone expected a smooth finale to the eight-year battle to replace the log cabin on Chardon Square with the Heritage House, they were dreaming.
Within inches of developing the building specs for the proposed project, the Heritage House committee was pulled up short last week by public and city council condemnation of the hip-roofed design.
Hundreds of people signed an online petition objecting to the published rendering of the proposed community building, claiming it doesn’t fit in with the historic flavor of the square and the surrounding buildings.
Complaints comparing the proposed design to a rest stop on the Interstate have appeared on Facebook, said Chardon resident Carol Kovac.
Several websites devoted to Chardon history and Chardon High School have blasted the proposed log cabin replacement, she said.
“They just exploded with people who are very upset about it,” Kovac said Tuesday. “The design does not reflect Chardon’s historic nature or enhance the square’s beautiful setting.”
She called this outpouring a testament to how much people care about their square and community. Wanting to give people a way to voice their distress, Kovac started an online petition Monday and was astonished when it was signed by 500 people in the first 24 hours.
“People want to have input,” she said, adding not everyone who signed the petition lives in Chardon, but they all want the square to retain its historic architecture.
“It’s pretty startling how many people really care. They moved away and they still care,” she said.
Some object to any change on the square, but Kovac isn’t one of them.
“I support replacing the log cabin,” she said of the outdated, inefficient structure built in the 1960s. “It’s a fake (log cabin) put up real quick.”
However, it has been a fixture for half a century and its replacement will probably be in the same place as long or longer, she added.
“It’s this what we want the square to look like 50 years from now?” Kovac asked.
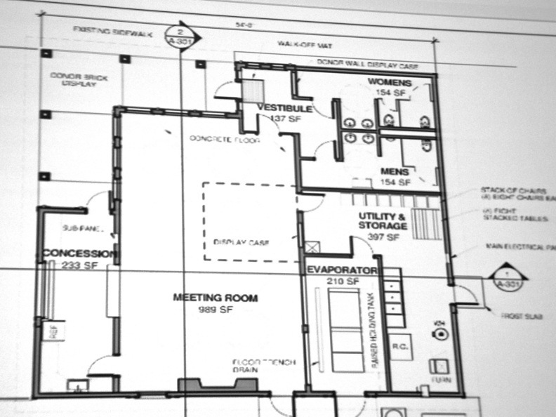
The interior plan has her vote, however, including the maple sap evaporator room.
“I like the functionality of it,” Kovac said, adding, even if the evaporator is only used one month a year, it reminds residents of their history and culture.
The meeting room, restrooms and concession area will serve the community well, she said.
“The more you have, the more people are going to use the square,”?Kovac added.
But it is the concerns of Chardon City Council members about the architect’s rendering of the Heritage House that may lead to a return to the original plan, city Manager Randy Sharpe said last Tuesday afternoon.
The rendering was presented to council Feb. 12 and Dale Griffis, design/builder with Cold Harbor Building Company, was given approval to proceed by a 5-1 vote.
But Sharpe said some members objected to the hip roof, which was designed to lower the height of the structure on Chardon Square by seven feet.
“We might take it back to the gabled roof. It’s higher, but more like a sugarbush structure,” Sharpe said, adding a cupola would still be included on the roof as well as open trusses rather than a ceiling in the meeting room.
Window dividers called mullions may be part of the design, and additional windows could be added to improve lighting and break up the solid walls, he said.
“There are many ways to dress a building,” Sharpe said, adding the redesign, including more details, could be ready as early as the March 19 meeting.
Chardon is a busy city and he said the extra event and meeting space will probably bring even more activity to the county seat.
“It’s going to be such a nice asset,” he said, adding the summer calendar for use of the square fills up quickly every year.
Sharpe said the new set of plans won’t affect the budget, which is about $450,000 for the structure and about $600,000 for the entire project. The timeline should remain the same as well.
The city is contributing less than $80,000, with the balance coming from a number of stakeholders, Sharpe said.
The committee consisting of architect Dominic Durante, Griffis, City Engineer Paul Hornyak, City Planning Director Steve Yaney and Sharpe will review the revised plans and make a recommendation to council, he said.
“There’s always room for improvement,”?Sharpe said. “There will always be someone who won’t like it.”








